Diplomarbeiten aus dem

Planung eines Gemeindeszentrums mit Wohnungen in Straßwalchen

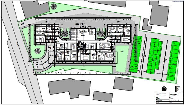
In der Gemeinde Straßwalchen wird der Neubau eines Gemeindezentrums mit Wohnungen auf dem Standort der ehemaligen Feuerwehr und Rettung geplant. Derzeit besteht das alte Feuerwehrhaus noch, es soll abgerissen werden. Besonders wichtig ist es, unser Bauprojekt in das Umfeld in Straßwalchen architektonisch und infrastrukturell zu integrieren.

Mit der Schaffung von neuem Wohnraum bietet das Gemeindezentrum eine Möglichkeit, junge Familien in die Region anzusiedeln. Als statische Aufgaben werden eine Glasüberdachung und eine Stahlstiege im Foyer berechnet. Die baubetriebliche Betrachtung des zu bearbeitenden Objekts wird unter der Vorgabe, dass dies von einer ARGE ausgeführt wird, ausgearbeitet. Zur baukonstruktiven Lösung werden Polier- und Detailpläne, die Belichtung und energietechnische Auswirkungen und die Variantenuntersuchung verschiedener Fassadensysteme realisiert.

 

Diplomarbeitsteam und Aufgabenstellung:

 

Marin Cakaric

Statische Ausarbeitung einer Glasüberdachung in der Stahl-Bauweise

 

Ibrahim Alic

Planung und Baukonstruktive Lösung durch Erstellung von Polier- und Detailplänen

 

Gordan Pocuc

Baubetriebliche Planung der Projektabwicklung, unter der Annahme, dass die Projektausführung durch eine ARGE ausgeführt wird

 

Esmin Ahmetovic

Statische Ausarbeitung einer Stiege in der Stahl-Bauweise

 

Diplomarbeitsbetreuer:

Dipl.-Ing. Miloslav Duran-Bastak

OStR. Arch. Dipl.-Ing. Johann Enzesberger

Dipl.-Ing. Dr. Klaus Fuchs