Diplomarbeiten aus dem

Gestalterische, konstruktive und statische Planung einer Talstation

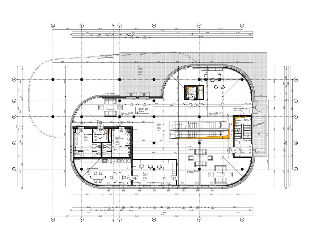
Projektiert wurde eine Talstation, die den touristischen Anforderungen gerecht wird und sich gut in die Umgebung integriert. Mit unserer Diplomarbeit wollten wir erreichen, einen sowohl nachhaltigen als auch innovativen Neubau einer Seilbahn-Talstation zu errichten. Dabei legten wir einen großen Stellenwert auf die Materialien des Gebäudes. Bei der konstruktiven Ausarbeitung wurden Ausführungspläne sowie auch Detailpläne an den wichtigsten Knotenpunkten erstellt. Zudem wurde in der statischen Ausarbeitung ein alternatives Konzept in Holz-Stahlbauweise berechnet. Die gesamte Talstation wurde so geplant, dass die Umgebung, in der sie errichtet wird, keinen Einfluss auf die Formensprache des Gebäudes hat. Im Zuge der gestalterischen Ausarbeitung wurden verschiedene, bereits errichtete Seilbahn-Stationen auf deren Raumaufteilung und Dimensionen der Räume untersucht, um ein besseres Verständnis über die Formensprache einer Seilbahn zu erlangen.

With our work, we wanted to build a new valley station that was both sustainable and innovative. We placed great emphasis on the materials of the building. During the structural elaboration, construction plans as well as detailed plans at the most important junctions were prepared. In addition, an alternative concept made of a wood-steel combination was calculated in the structural analysis part of our work. During the process of the architectural concept preparation, different cable car stations that have already been built were examined in relation to their spatial distribution, materials that were used on the facade and the dimensions of the necessary rooms in order to gain a better understanding of the relations between the station, the space needed and architectural design choices that are needed to design a proper ropeway station.

 

Diplomarbeitsteam und Aufgabenstellungen

Marc Müller: Ausarbeitung der Polier- und Detailpläne in Holzbauweise

Lukas Kowal: Gestalterische Ausarbeitung einer Talstation

Ahmet Samanci: Ausarbeitung des statischen Konzeptes in Stahl- und Holzbauweise

 

Diplomarbeitsbetreuer

Prof. Arch. Dipl.-Ing. Alexander Lugner

Prof. Arch. Dipl.-Ing. Rupert Krallinger

Prof. Dipl.-Ing. Miloslav Duran-Bastak