Diplomarbeiten aus dem

Baubetriebliche und statische Planung eines Berghotels im Pongau

Diese Diplomarbeit widmet sich der Neuplanung eines Hotelkomplexes durch den Abriss und das Recycling eines alten Gebäudes. Das neue Hotel bietet Platz für 140 Gäste und zeichnet sich durch die Verwendung von Recycling-Baustoffen aus. Die Konstruktion basiert auf einer Skelettbauweise mit Stahlbetonstützen, um Stabilität zu gewährleisten. Die Herausforderungen, die mit dem steilen Hang einhergehen, insbesondere die unterschiedlichen Höhenschichtlinien, wurden durch recycelten Aushub bewältigt.

Der erste Teil der Arbeit beschäftigt sich mit der Kostenplanung des Hotelkomplexes. Zunächst wurden die Grundlagen ermittelt, daraufhin wurde ein Leistungsverzeichnis mit Mengenermittlung sowie den entsprechenden Aufmaß-Plänen erstellt. Für die exakten Kosten wurden die Preise mittels K7-Blättern ermittelt und im Leistungsverzeichnis eingetragen.

Im zweiten Teil der Diplomarbeit wird auf die Nachhaltigkeit und die Verwendung von Recyclingbaustoffen Wert gelegt. Die Bedeutung von nachhaltigem Bauen und der Wiederverwendung von Baustoffen nimmt kontinuierlich zu, da sie entscheidend sind, um unsere Umwelt zu schützen. Dabei werden alle Aspekte, die nachhaltiges Bauen definieren sowie die verschiedenen Zertifizierungen, die erreicht werden können, beleuchtet.

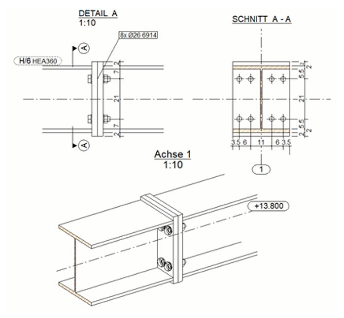
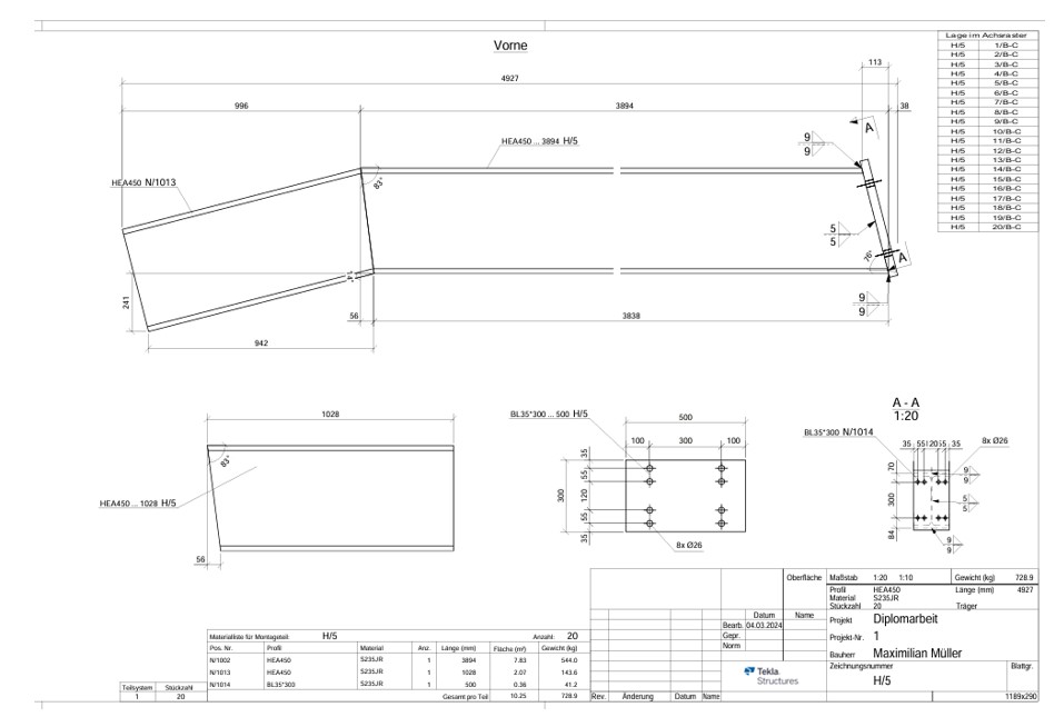
Der dritte Teil der Arbeit widmet sich der statischen Konstruktion der Zimmertrakte. Hierbei wurde zu Beginn ein statisches Konzept festgelegt und eine Lastaufstellung durchgeführt. Als nächsten Schritt folgte die Bemessung der einzelnen Rahmen. Nach mehreren Anschlussberechnungen wurden Werkpläne erstellt.

Im abschließenden Teil wird die Eingangshalle konstruktiv bearbeitet. Zunächst wurde ein statisches Konzept erstellt, anschließend wurden die auf das Bauwerk einwirkenden Kräfte und Lasten berechnet. Basierend auf diesen Werten und Maßen wurden die Profilquerschnitte mittels FE-Programmen ausgewählt und die entsprechenden Anschlüsse im Detail konstruiert.

 

This diploma thesis focuses on the redesign of a hotel complex through the demolition and recycling of an old building. The new hotel accommodates 140 guests and stands out for its use of recycled building materials. The construction relies on a skeletal structure with reinforced concrete pillars to ensure stability. Challenges associated with the steep slope, particularly the varying elevation contours, were addressed through recycled excavation materials.

The first part of the work deals with cost planning for the hotel complex. Initially, fundamentals were determined, followed by the creation of a bill of quantities and corresponding measurement plans. Exact costs were determined using K7 sheets and recorded in the bill of quantities.

In the second part of the thesis, emphasis is placed on sustainability and the use of recycled building materials. The significance of sustainable construction and the reuse of materials is steadily increasing as they are crucial for environmental preservation. I illuminate all aspects defining sustainable construction, as well as the various certifications that can be achieved.

The third part of the thesis focuses on the structural design of the guest room wings. Initially, a static concept was established, and a load assessment was conducted. The next step involved the dimensioning of individual frames. After several connection calculations, workshop plans were ultimately created.

The final part of the thesis addressed the structural design of the lobby. Initially, a static concept was developed, followed by the calculation of forces and loads acting on the structure. Based on these values and dimensions, profile cross-sections were selected using FE programs, and the corresponding connections were detailed in construction.

 

Diplomarbeitsteam und Aufgabenstellungen

Stefan Wurzinger: Kostenplanung des Hotelkomplexes

Julian M. Grabner: Nachhaltigkeit im Bauwesen und Recycling von Baustoffen

Maximilian Müller: Statische Ausarbeitung der Zimmertrakte in Stahl- bzw. Holzbauweise

Eduard Lupancu: Statische Ausarbeitung der Eingangshalle in Stahl- bzw. Holzbauweise

 

Diplomarbeitsbetreuung

Prof. Dipl.-Ing. Manfred Lehner

Prof. Arch. Dipl.-Ing. Petra Waldmann

Prof. Dipl.-Ing. Miloslav Duran-Bastak

 

Berghotel im Pongau