Ein kleines Holzhaus entsteht

Die Zimmerei Grundausbildung vermittelt die Grundlagen und Möglichkeiten im Holzbau. Im Vordergrund dieser Übung steht der Erwerb von Kenntnissen in den Bereichen Riegel- und Fachwerksbau, neuzeitliche Holzständer-/Skelettbauweise sowie traditionelle Blockwandbauweise.

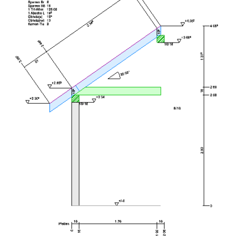
Die Schülerinnen und Schüler erlernen die zimmermannsmäßige Darstellung in Form des sogenannten „Aufrisses“, d. h. die planliche Darstellung.

Präzision und räumliches Vorstellungsvermögen werden bei der graphischen Darstellung gefördert und gefordert. Der Plan dient als Grundlage für den nächsten Schritt, den sogenannten „Abbund“ der einzelnen Hölzer. Das Hauptaugenmerk liegt dabei auch auf der richtigen Bezeichnung der Bauteile und der Anwendung der Fachbegriffe.

Erste statische Grundlagen und Zusammenhänge im Verbund der einzelnen Hölzer in der Riegelwand werden vermittelt. Dabei wird das Fundament für künftig komplexere Systeme gelegt. Für die Herstellung des Modells im Maßstab 1:5 wird der richtige Umgang mit dem Handwerkszeug vermittelt und erlernt. Der Einsatz von Maschinen ist für den ersten Jahrgang tabu. Unter Einsatz von Anreißwinkel, Stemmeisen und Handsäge werden die Holzverbindungen wie Versätze, Schlitz u. Zapfen, Überplattungen etc. ausgearbeitet.

Nach dem Zusammenbau des Riegelwand-Modells werden verschiedene Möglichkeiten der Außenwandbekleidungen und der Dämmungen unter bauphysikalischen Aspekten aufgezeigt. Auf die Modellwand wird eine Außenwandbekleidung mit Hinterlüftung aufgebracht, wie beispielsweise eine vertikale Leistenschalung oder eine horizontale Stülpschalung.

Der erlernte Unterrichtsstoff wird durch die Mitschrift gesichert und durch Anfertigen eines Bautageberichtes nochmals reflektiert und gefestigt. Am Ende des Lehrgangs, der ca. 5 bis 6 Unterrichtstage zu je 7 Unterrichtseinheiten pro Gruppe umfasst, entsteht somit eine lückenlose Dokumentation des erlernten Lehrstoffes.

Text: FL Christian Pfarrkirchner BEd